Leiria, Caldas da Rainha, Nossa Senhora do Pópulo, Coto e São Gregório, Centro (Nossa Senhora do Pópulo)
🏢 Excellent Opportunity: Building in the Center of Caldas da Rainha for Total Renovation! 🏢
Main Features:
Central Location: Situated in the heart of Caldas da Rainha.
Total Area: 133m² of gross area and 211m² of land.
Construction Potential: Building in ruins with the possibility of 3 floors + attic.
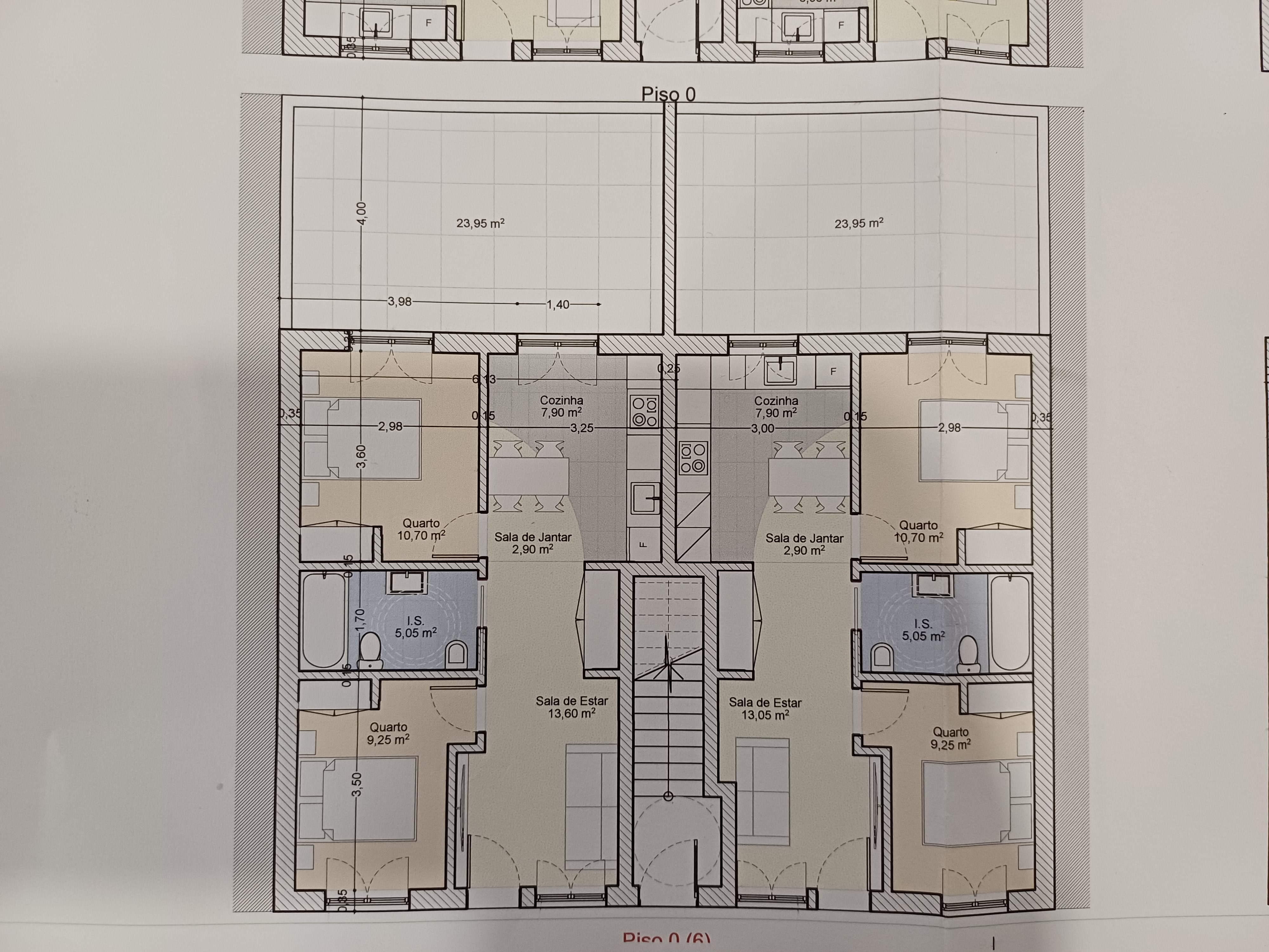
Current Distribution: Floor 0 with 2 T2 apartments, each with a 23.95m² rear terrace; Floor 1 with 2 T1 apartments, both with a 7m² balcony; Floor 2 with 2 T2 duplex apartments, each with a 7m² balcony.
Total refurbishment: Opportunity to create multiple dwellings or commercial spaces.
🌟 Detailed Description:
This building, located in the center of Caldas da Rainha, has great potential for total refurbishment. With a total area of 133m² and a plot of 211m², this property offers a unique opportunity to rebuild and adapt according to the new owner's vision.
Currently in a state of disrepair, this building offers the possibility of creating up to three floors, including the option of an attic. The current distribution comprises a first floor with two 2-bedroom apartments, each with a rear gazebo of 23.95m², providing outdoor space for residents.
On the second floor, there are two one-bedroom apartments, both with 7m² balconies, adding a touch of private outdoor space.
The second floor offers two 2-bedroom duplexes, each with a 7m² balcony, providing lovely views and an additional outdoor space for relaxing or outdoor entertaining.
This property represents a unique opportunity for investors or those looking to create multiple dwellings or even commercial spaces in the city center.
🏗️ The total refurbishment offers the opportunity to create a personalized and versatile space, adapted to specific needs and preferences.
📞 Don't miss out on this opportunity! Contact us today for more information and to explore the potential of this building in the heart of Caldas da Rainha! 📞